La reforma y ampliación del CEIP Juan Bautista Llorca y la del CEE Santo Ángel de la Guarda comenzarán en los próximos días, después de que la Junta de Gobierno Local haya aprobado esta mañana los planes de Seguridad y Salud de ambas obras, uno de los últimos trámites administrativos.
Ambos proyectos forman parte del Plan Edificant y se adjudicaron a finales de febrero a la mercantil Aitana Actividades de Construcción y Servicios S.L. por 1.333.618 euros y 866.848 euros, respectivamente.
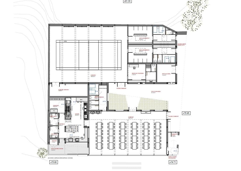
El proyecto de reforma del CEIP Juan Bautista Llorca de Villafranqueza comprende las obras de demolición de las antiguas viviendas de maestros para la construcción del comedor y cocina, así como de un gimnasio y adecuación del centro. El plazo de ejecución de estas obras es de 12 meses.



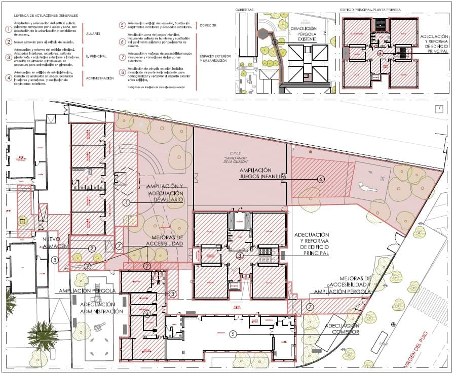
En cuanto al proyecto de reforma integral del CEE Santo Ángel de la Guarda, tiene como objetivo acometer las obras de ampliación de aulas, construcción de almacén, adecuación de patios exteriores y fachadas, así como la reforma interior del centro. Las obras tienen un plazo de ejecución previsto de nueve meses.




Los dos proyectos han sido redactados y licitados por el Ayuntamiento de Alicante, que se encargará de su ejecución. En concreto, las obras están bajo la supervisión de la concejalía de Infraestructuras, que dirige la edil Cristina García. La financiación corre a cargo de la Generalitat Valenciana, dentro del Plan Edificant.
El Ayuntamiento trabaja también para volver a licitar por la vía de urgencia el proyecto de ampliación de dos aulas de Educación Infantil y reforma del CEIP La Florida, después de que este concurso se declarara desierto.



