La concejalía de Urbanismo del Ayuntamiento de Alicante ha aprobado hoy la concesión de la licencia ambiental de obra mayor para la construcción del nuevo centro de educación infantil y primaria (CEIP) La Almadraba, lo que permite a la Conselleria de Educación iniciar las obras del centro educativo.
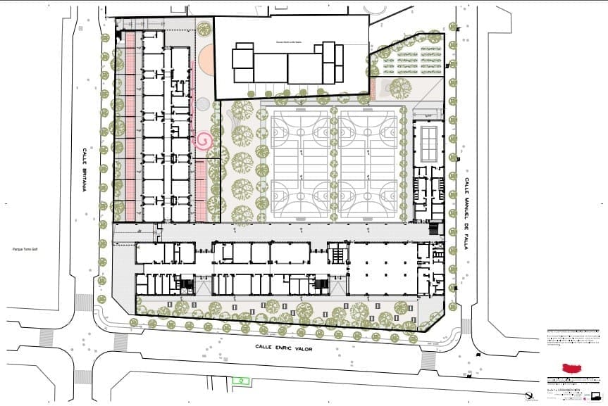
El CEIP La Almadraba se levantará en una parcela de 12.268 metros cuadrados situada en la zona de La Condomina, entre las calles Britania, Enric Valor y Manuel Azaña. La superficie construida será de 7.016 metros cuadrados y estará dotado de tres aulas de infantil en el ciclo de 0 a 2 años, otras nueve para educación infantil en el ciclo de 3 a 5 años y 18 aulas más para educación primaria. En total, tendrá capacidad para acoger a 735 alumnos y dispondrá de un comedor con 600 plazas.
Este centro educativo contará con tres edificios conectados entre sí a través de techados en su primera planta, dedicados a educación infantil, primaria y gimnasio. También dispondrá de zonas de juego y de recreo diferenciadas y pistas deportivas exteriores.
El edificio que da a la calle Britania, de una sola planta, acogerá las aulas, baños, despachos, almacenes y espacios comunes de educación infantil. El segundo edificio, con fachada a la calle Enric Valor, albergará las aulas de educación primaria, así como los despachos, zonas comunes y el comedor del centro. Este bloque tendrá dos plantas. Por último, en el edificio más próximo a la calle Manuel Azaña se ubicará el gimnasio, con sus baños y vestuarios, sobre el que también está previsto ubicar aulas de primaria. En el espacio central situado entre los tres edificios se habilitarán zonas de juego para las distintas etapas escolares y se situarán pistas deportivas exteriores.
La concesión de la licencia ambiental permite iniciar el proceso de licitación y adjudicación del contrato de construcción del centro educativo, que parte con un presupuesto de ejecución material de 7.854.826 euros. Una vez adjudicado el contrato podrán empezar las obras, que parten con un plazo estimado de ejecución de 20 meses.
Trabajo conjunto del Ayuntamiento y la Generalitat
La concejala de Educación, Mari Carmen de España, resalta que la culminación de los trámites urbanísticos para la construcción del CEIP La Almadraba es “una gran noticia, ya que este nuevo colegio supondrá un gran alivio desde el punto educativo para la zona de playas”. Añade que esta obra “es una prioridad y una necesidad urgente, para que los alumnos y la comunidad educativa de La Almadraba dispongan de las unas instalaciones adecuadas”.
De España agradece el “desbloqueo de este proyecto por parte del nuevo gobierno de la Generalitat”, que presentó la solicitud de licencia en julio, y apunta que la “agilización de los trámites urbanísticos por parte del Ayuntamiento y del Consell, que ha posibilitado la concesión de la licencia ambiental seis meses después de la solicitud por parte de la Conselleria de Educación”, es fruto del “trabajo estrecho de colaboración y coordinación con la Generalitat, que ha sido posible gracias al cambio de gobierno”. La edil señala que “cuando hay voluntad de colaboración, los proyectos salen adelante”, recuerda que «el Gobierno del Botànic no construyó ni un solo centro educativo en Alicante en ocho años» y asegura que “seguiremos trabajando de la mano para sacar adelante el resto de proyectos educativos pendientes”.
Por su parte, la concejala de Urbanismo, Rocío Gómez, incide en que los actuales equipos de gobierno del Ayuntamiento de Alicante y de la Generalitat “han hecho lo posible por acelerar al máximo la tramitación de este expediente, conscientes de que el colegio La Almadraba es un proyecto prioritario para la ciudad”.
A la construcción de este colegio se sumarán en los próximos años las del Centro de Educación Especial El Somni, cuyo proyecto constructivo y de ejecución se aprobó en octubre de 2023, y el nuevo centro de La Cañada del Fenollar, que está en trámite de revisión de precios actualizada. También se han iniciado los trámites para la adjudicación de las reformas integrales de los colegios Juan Bautista Llorca y La Florida, así como del Centro de Educación Especial Santo Ángel de la Guarda.




